组合式变压器(美式箱变)器和外壳组成,并由工厂预先装配完成的可移动变配电成套设备。它主要用于取代传统土建变电站实现变电、配电的功能。箱式变电站既可用于户外,也可用于户内,广泛应用于工业园区、居民小区、商业中心、公共场所等场合使用。
1 .总则
本说明书用来辅助工程技术人员进行组合式变压器(以下简称组变)的安装、使用和操作.
本厂生产的组合变压器为全绝缘、全密封、用于台置安装的防水型三相配电变压器,适应于 额定电压为10KV的三相配电系统.满足相应国家标准的要求.
本说明书不能替代电气设备的一般操作规程,也不可能满足安装、使用和操作的所有需求. 这些工作应同熟悉电力系统的安全和操作规程人员进行.
2 .使用条件环境
a.海拔高度:不超过1000M.
b.环境温度:-25C至+40C
c.相对湿度:不大于95% (日平均值).
d.地面倾斜度:不操过3。.
e.风速:不超过35m/s.
无剧烈冲击震动、无严重污染和化学腐蚀介质、无爆炸危险的户内外场所。
3 .主要技术参数
序号 | 名称 | 单位 | 高压侧 | 变压器 | 低压侧 |
1 | 额定电压 | KV | 10 | 0.4 | |
2 | 最高工作电压 | KV | 12 | ||
3 | 额定容量 | KVA | 50-2500 | ||
4 | 额定电流 | A | 10-630 | 100-2500 | |
5 | 短时耐受电流 | KA | 12.5/20 | 12.6-40 | |
6 | 短时耐受时间 | S | 2 | 1 | |
7 | 峰值耐受电流 | KA | 50 | 30-60 | |
8 | 工频耐压 | KV | 35 | 35 | 5 |
9 | 雷电冲击耐压 | KV | 75 | 75 | |
10 | 高压限流熔断器速断电流 | KA | 50 | ||
11 | 防护等级 | Ip33 | Ip65 | Ip33 | |
12 | 噪声水平 | db | W55 | ||
13 | 额定频率 | Hz | 50/60 |
4 .开箱验收检查
检查产品是否有损伤,变形和断裂。按装箱清单检查附件和专用工具是否齐全,在确认 无误后方可按安装要求进行安装。
5 .安装
A.组变安装在其高度距地面100-400mm的足以承受组变重量的混凝土基座上。组变尺寸和基座 的推荐尺寸图见附录1。
B.电缆在组变就位前安放好,并且必须是无电的。
C.靠近箱体顶部有用于装卸的吊钩,起吊钢缆拉伸时与垂直线间的角度不能超过30。,如有必 要,应用横杆支撑钢缆,以免造成组变结构或起吊钩的变形。组变大部分重量集中在装有铁 心,绕组和绝缘油的主箱体中,高低压终端箱内大部分是空的,重量相对较轻。(使用吊钩 或起重机不当可能造成组变或其它附件的损坏,或引起人员伤害。)
敬告:如果组变不能用起重机进行起吊,可以用滑板或滚筒滑动。当支起箱体,在下面塞入 滚筒时,至少需要两个千斤顶,相邻两个角度要同时平稳抬起,以免箱底变形。千斤顶 只能顶在箱底的棱角处,并且还要加上垫板,不要将千斤顶放在散热片,阀门或薄钢 板下面。如果使用滚筒,数目应适当,并应平均承担箱体内的重量。拉动变压器之前, 先在箱变底部两边装上拉环。不要把拉线固定在组变的铸件或别的片状金属部件上。
D.安装地点
组变内的绝缘油分两种,一种为高燃点油,一种为优质矿物油。充高燃点油的组变(在组变 低压隔离室内有明显标志)可用在建筑物内,也可用于户外;而充矿物油的组变不能用在 建筑物内。优质矿物油的凝点在-45。。以下;高燃点油的凝点为-30。1充高燃点油的组变不能 用于环境温度低于-30°C的地区。无论是充优质矿物油或高燃点油的组变,如果在环境温度低 于-20°C时投运,需要空载运行24小时进行预热,然后逐渐加载。如果有疑问,请与本厂联系。
6 .交接试验
在安装完毕后,接上试验电缆插头(试验电缆插头可作为选购件购买),按国标有关试验规程 进行交接试验。
7 .安装注意事项
A.接入系统时
在作任何系统接线之前,先将箱体接地.组变的箱体接地端子必须连接到一个固定的、阻抗 低的接地点。
在接线之前,清洁所有的套管、套管座、端子接线座和接点,清理所有的灰尘、油污及异物。 连接组变的中性点和系统的中性点。
按要求安装附件,确保绝缘油在适当的高度。
在无人值班时,要关好并锁上箱门。
8 .操作时
☆ 一般情况下,插入熔断器的操作应在断电后进行,操作之前,应仔细阅读有关的操作说明。
☆ 内部负荷开关只能用来开断额定电流,而不能用来断开故障电流。
☆ 必须用绝缘操作杆来操作负荷开关。
C.需检修时
☆ 组变在系统运行时不能进行检修。检修前应绝缘、断电并完全隔离组变。
☆ 操作插入式熔断器,打开注油阀以及打开油箱之前要先释放变压器内部压力(拉出泄压阀), 在内压为零之前,不要进行以上操作。
敬告:释放出来的气体可能是易燃的,释放时要小心。
除非非常有必要,不要打开组变的箱盖。打开之前,要清理箱盖 周围的区域,并在尽可能短的时间内盖上箱盖,防止潮气和灰尘 进入箱体。不要在潮湿天气或雨天打开组变。
8.投运
A.投运前的检查
☆ 检查电缆接头是否按要求连接好,套管接头和肘型插头是否连接到位;
☆ 所有电缆接头和箱体的接地线必须接到一个稳定的,低阻抗的接地点;
☆ 在确认没有任何问题后,方可投入运行;
☆ 组变在投运前必须检查箱内油面高度,直接从它油位计上读到油面高度,25℃时油面应处于 油位计25℃的指示位置。
敬告:组变投入运行之前,应深入了解组变。确保熟知所有设备和附件的应用及功能。 操作时请着上防防护性衣服和必要防护设备,在对设备进行接地、试验、隔离 或合闸操作都要使用绝缘操作杆。在不能确定组变状态时,当成带电的处理。
B.投运准备工作
a.补充油
当有需要时,应适时补充油
☆使用没有被污染的泵和软管;不要使用橡胶软管。因油会溶解其中含有的硫磷,所以应采用 金属或非橡胶软管。
☆将油泵的出油管接在油箱的注油口上。
☆从密封的临时容器的底部将油泵回,注意不可让进油管吸入空气。
☆防止高速油流充气,应缓慢的泵入,直到要求油位。
b.接地
组变外壳上的专用接地必须接到永久性的接地点。
c.高压接线
☆组变上装有通用的高压套管插座。需要在现场插接与套管插座配套的单通套管或双通套管。 单通套管和双通套管的安装方法见附录3。
☆按附录4说明的肘形电缆插头安装方法把肘形电缆插头安装在高压接线电缆上,然后再把 肘形插头插到单通或双通套管上。
d.低压接线
组变上有三相线和中性线的接线插座供连接低压电缆用。
敬告:组变只能在铭牌上规定的额定值下运行,长期的过负荷运行会明显影响预期寿命。 如果组变在户外存放时间过长,必须取油样检查含水量和介电强度。组变出厂时, 箱体内油面上方一般是低度真空(压力表显示负压),正常情况下可能随运行或环境 的改变而变化,如果压力表长期显示零压则表明可能有渗漏,需要作进一步检查。
C.投运操作要求
☆ 操作前应了解线路的运行状况和分接开关的位置,负荷开关应处于与变压器断开的位;
☆ 操作前应了解所有电缆接头的用途和功能;
☆ 操作者应站在最佳位置,用绝缘操作杆操作负荷开前,进行投运操作;
☆ 根据有关高压操作规程规定,必须使用必要的防护性用具,以确保安全。
D.送电
合上上一级开关,然后按8. 3条要求把负荷开关转与变压器接通的位置,组变即投入运行。
9、附件
A.分接开关
☆组变分接开关为无载分接开关,只有在确认已断电时,方可进行分接操作。
☆分接开关有三档或五档,以A、B、C、D、E标识,分接范围10KV±5%或10KV±2*2. 5%。
☆分接开关的“T”形操作手柄装在高压室的面板上,操作前,先把锁定螺栓拧出,然后 旋转至要求的位置,调整完毕后,拧紧锁定螺栓。如需加锁,可以将上锁螺栓拧到低, 然后用挂锁锁定。
敬告:操作分接开关前应将组变断电,否则,将造成组变损坏,并可能导致严重人身伤害。
负荷开关
☆负荷开关为三相联动开关,具有快速弹簧操作结构。分有2位置和4位置两种类型。其中2位 置用于终端型的变压器,4位置用于环网型变压器。
☆ 负荷开关只能用来开断负荷电流,不能开断短路电流。
☆ 必须采用绝缘操作杆来操作负荷开关。
插入式熔断播
☆ 插入式熔断器为从外部更换熔丝提供了方便,更换熔丝的方法参见附录2。
☆不同容量的组变,采用的熔丝规格不同,更换熔丝时一定要注意。在每台组变高压室门 内侧标有所有选用的熔丝型号,更换熔丝时一定要选用相同型号的熔丝,不同容量的箱变 选用的熔丝型号如下:
容量 | 插入式熔丝规格 |
100 | 4038108C06 |
125 | 4038108C07 |
160 | 4038108C07 |
200 | 4038108C09 |
250 | 4038108C09 |
315 | 4038108C09 |
400 | 4038108C12 |
500 | 4038108C12 |
630 | 4038108C12 |
800 | 4038108C14 |
1000 | 4000353C16 |
1250 | 4000353C16 |
1600 | 4000353C17 |
D.电缆附件
电缆附件:肘型插头、单通套管(或双通套管)、单通接头(或双通接头)、绝缘保护帽、分别 见附录3-5。
E.避雷器
如果需在组变上安装避雷器时,可以选用全绝缘的肘型氧化锌避雷器。安装时,组变列采用 双通套管,双通套管的一端接肘型插头,另一端接避雷器。避雷器安装方法:
☆ 将接地线与系统接地相连。
☆ 用铜线把避雷器接地端与系统接地相连。
☆ 使用本厂提供的润滑避雷器的接触面。
☆ 使用绝缘操作杆勾住避雷器的操作孔,用力把避雷器插进套管接头,一定要把避雷器插到位。 敬告:组变进行试验时一定要卸下避雷器,试验结束后重新安装好。
F.故障指示器和电压显示器
见附录6
10、维护
A.外部维护
定期检查组变所有外表面,如涂层有意外碰伤、刮伤和磨损,应立即进行修补。
B.内部维护
定期检查组变高、低压室内所有附件和仪表工作是否正常,检查各密封部位是否有渗漏现象。
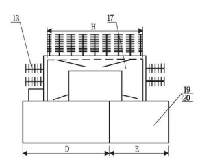
附录1组合式变压器尺寸及安装
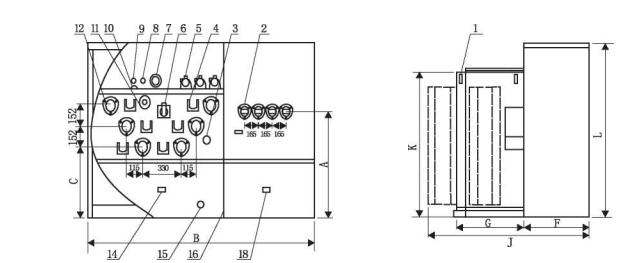
| 1 吊钩 11 油温表 2 低压套管 12 高压套管插座 3 分接开关 13 散热片 4 壁挂 14 高压室接地 5 插入式熔断器 15 放油阀 6 负荷开关 16 隔板 7 压力表 17 油箱 8 泄压阀 18 低压室接地 9 注油口 19 高压室 10 油位表 20 铭牌 |
图1-1标准环网型与终端鲫合赧压器尺寸图
组变容量(kVA) | A | B | C | D | E | F | G | H | J | K | L |
100 | 1030 | 1971 | 680 | 1091 | 880 | 536 | 560 | 1350 | 1176 | 1346 | 1580 |
125 | 1030 | 1971 | 680 | 1091 | 880 | 536 | 560 | 1350 | 1176 | 1346 | 1580 |
160 | 1030 | 1971 | 680 | 1091 | 880 | 536 | 560 | 1350 | 1176 | 1346 | 1580 |
200 | 1030 | 1971 | 680 | 1091 | 880 | 536 | 560 | 1350 | 1176 | 1346 | 1580 |
250 | 1030 | 1971 | 680 | 1091 | 880 | 536 | 560 | 1350 | 1335 | 1346 | 1580 |
315 | 1030 | 1971 | 680 | 1091 | 880 | 536 | 560 | 1350 | 1335 | 1346 | 1580 |
400 | 1030 | 1971 | 680 | 1091 | 880 | 536 | 560 | 1350 | 1335 | 1346 | 1580 |
500 | 1030 | 1971 | 680 | 1091 | 880 | 536 | 560 | 1350 | 1335 | 1346 | 1580 |
630 | 1290 | 2000 | 796 | 963 | 1037 | 660 | 660 | 1440 | 1540 | 1486 | 1710 |
800 | 1290 | 2000 | 796 | 963 | 1037 | 660 | 660 | 1440 | 1675 | 1486 | 1710 |
1000 | 1290 | 2000 | 796 | 963 | 1037 | 660 | 660 | 1440 | 1765 | 1486 | 1710 |
1250 | 1200 | 2205 | 836 | 1158 | 1047 | 660 | 760 | 1440 | 1865 | 1486 | 1710 |
1600 | 1200 | 2205 | 836 | 1213 | 992 | 660 | 800 | 1700 | 1920 | 1526 | 1710 |
注:(1).以上尺寸仅供参考;
(2).终端型和环网型外形尺寸相同。
|
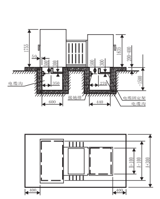
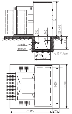
|
图 1-3 标准型组合式变压器安装示意图 | 图 1-4 子母型组合式变压器安装示意图 |

1 低压室接地 2 低压套管 3 吊钩 4 高压室 5 油箱 6 散热片 7 壁挂 8 注油口 9 泄压阀 10 油位表 | 11 压力表 12 负荷开关 13 插入式熔断器 14 分接开关 15 高压室接地 16 高压套管插座 17 后备螺母 18 低压室接地 19 铭牌 |
变压器容量(KVA) | A | B | F | G | K |
100 | 2000 | 1400 | 660 | 1400 | 730 |
125 | 2000 | 1400 | 660 | 1400 | 730 |
160 | 2000 | 1400 | 660 | 1400 | 730 |
200 | 2000 | 1400 | 660 | 1400 | 730 |
250 | 2000 | 1400 | 660 | 1400 | 730 |
315 | 2000 | 1400 | 660 | 1400 | 730 |
400 | 2000 | 1400 | 660 | 1400 | 730 |
500 | 2000 | 1400 | 660 | 1400 | 730 |
630 | 2205 | 1400 | 800 | 1465 | 755 |
800 | 2205 | 1400 | 800 | 1465 | 755 |
1000 | 2205 | 1400 | 800 | 1465 | 755 |
1250 | 2205 | 1400 | 800 | 1465 | 755 |
注:(1). 以上尺寸仅供参考;
(2). 终端型和环网型外形尺寸相同。
附录 2 插入式熔断器
拉出熔断器管
1. 拉出压力释放阀,待油箱内的压力完全释放后,用绝缘操作杆勾住熔断器管操作孔。
2. 推下操作手柄,使操作柄的活动钩锁住熔断器管操作孔,将熔断器管的锁钩旋转 90°,解除熔断器管和熔断器座间的锁紧状态。
3. 将熔断器管向上拔出约 100mm,停留几秒,待熔断器管上的油流过后,缓缓拉出熔断器管。
4. 握住手柄,擦掉熔断器管的油迹。
敬告:如果发现油从熔断器安装座流出来,应再次拉出压力释放阀使油箱内外压力平衡。
更换熔丝
1. 用扳手旋松熔管的螺母,用另一扳手旋开另一螺母。(图片 2-1)
2. 松开端部螺栓,取出熔丝。(图片 2-2)
(注意:若熔丝未熔断,必须将已展平的漏斗形电极伸直,方可取出熔丝)
3. 检查熔丝管内部,确保清洁。
4. 从一端插入新的熔丝,熔丝的喇叭形电极预装在靠握柄端。(图片 2-3)
5. 装上熔管,用扳手紧固,扭矩约 5.7 - 8N.m。
6. 展平漏斗形电极,安装内部螺栓,用一个扳手卡住熔管,用另一个扳手旋紧端部螺栓,扭矩约 5.7 - 8N.m,再旋开端部螺栓,检查漏斗形电极是否展平,确保接触良好。
安装插入式熔断器
1. 用绝缘操作杆勾住熔断器管操作孔。
2. 将熔断器管插入熔断器座,将熔断器管的锁钩旋转 90°,扣紧锁钩住熔断器,确保和熔断器管座间的密封。
图片 2-1 | 图片 2-2 | 图片 2-3 |
附录3单通道套管和双通道套管
双通道管清洁、润滑及安装 1,参照单通套管要求清洁双通套管和套管座的接触表面,并涂润滑脂,按顺时针方向旋入双通套管,直到旋紧后棘轮空转并发 出响声为止。 2.用固定板使双通管定位。 3.用0. 8mm或相当号铜线将双通管接地孔与系 统接地相连。 4.装上配套的部件(如肘型插头、避雷器或绝缘保护帽等)。 |
|
单通道管清洁、润滑及安装 1.清洁套管和管座的接触表面,并涂润滑脂, 顺时针旋入单通套管,用专用工具旋紧(七圈半)。 注:如用扭矩安装工具,扭矩为13.5N. m。 2.用软线将单通套管的接地孔接地。 |
|
附录4肘型插头
|
|
图4-1 | 图4—2 |
肘型插头安装使用说明
1 .三芯电缆分相处理
☆在电缆端头>800mm处切去内、外护套等。
☆在分相处套上分支手套,在每单相线上热缩套管(铠装层接地),每项处理尺寸见图4-2。
2 .肘型插头安装
☆用电缆刷清洗导体表面,将冷压接头套在电缆导体上,将连接导体旋入冷压 接头的螺孔,选今后插入单(双)通套管。
☆选择合适的压接工具,压接应从冷压接头的铜铝连接处开始,每压一次,应 旋转90°,用软布榛掉多余的润滑剂。
☆拔出连接导体并旋下来。
☆清洁并润滑电缆表面和肘型插头内侧,将电缆慢慢推入肘型插头,指导与 屏蔽连接头相连接。在肘型插头端部可见冷压接头上的螺孔。
☆将连接导体旋入冷压接头的螺孔,用安装扳手旋紧直至其扭转180。。(若
用其它扳手,扭矩约为12.4N.m) o
☆用绝缘自粘带缠绕肘型插头与电缆热缩套管的结合部。
☆用接地线将肘型插头接地孔与系统接地点连接。
负荷投入
☆应保证有足够的操作距离。
☆用绝缘操作杆做杆勾住肘型插头操作孔。
☆将肘型插头的连接导体对准套管导体,向前推,直到感觉到已连接上,即一定要推到位。
☆操作应迅速、准、果断有力。
负荷切断
☆用绝缘操作杆勾住肘型插头操作孔。
☆左右转动绝缘操作杆以减少套管表面与肘型插头间的摩擦力。
☆迅速、准确、果断有力地拔出肘型插头,注意不要将导体碰到附近的接地线。
☆用绝缘操作杆将肘型插头挂在单(双)通接头上。
☆用绝缘操作杆将接好地线的绝缘保护帽套在导电部位上。
敬告:肘型插头的操作应有熟悉电力系统的安全和操作规程的人员进行。
仅在紧急(或特殊)情况下才用肘型插头分合负荷,平时推荐用符合开关。
肘型插头不能用来关合短路故障。
附录5单(双)通接头和绝缘保护帽
☆单(双)通接头用于插头插接带电的肘型插头,将带电电缆隔离、分段,或用来插拉不
带电的肘型插头,起防尘防水防潮的作用。
☆双通接头可一端接肘型插头,一端接肘型避雷器。
☆绝缘保护帽为套管和接头提供绝缘和保护封套。
单(双)通头安装
1 .摘除运输保护帽,清洁并润滑{参照单(双)通套管的要求}。
2 .用铜线将单(双)通接头接地孔与系统接地相连。
3 .把单(双)通接头挂在壁挂上,旋紧固定螺栓。
4 .用绝缘保护帽封住相应的接头。
敬告:所有相关部件必须在无电状态下才能进行单(双)通接头的安装和摘除。
绝缘保护帽安装
1 .清洁并润滑绝缘保护帽内表面相关的接头(或套管)的外表面。
2 .将绝缘保护帽接地线与系统接地相连。
3 .用绝缘操作杆勾住保护帽插孔,将绝缘保护帽推入相关的接头(或套管),直到连接到位。
绝缘保护帽摘除
1 .用绝缘操作杆勾住保护帽。
2 .左右转动保护帽以减少接触面的摩擦力,用力向后拉,即可将保护帽摘下来。
附录6.故障指示器和带电指示器
故障指示器安装在肘型插头的测试点上,当线路流过时,故障指示器的指示有白色自动翻转成红色, 显示此时线路处在“故障”状态,当电路恢复正常,系统再送电时指示窗自动复位,变为白色。 故障指示器有可选的高和低两个阀值,低阀值约为400A (有效值),高阀值约为800A(有效值)。 在出厂时,故障指示器的显示窗设定在故障指示(即显示红色),安装后,当线路电压达到5KV 以,几分钟后,故障指示器处于正常工作状态,显示窗自动复位到正常状态(即显示白色)。
注意:只有线路的线对地电压达到5KV以上,故障指示器才能储能执行故障显示和复位。
带电指示器安装在肘型插头的测试点上,通过显示灯的连续闪烁指示线路是带电,以此提醒 寻线人员。
故障显示器和带电指示器是全密封产品,可适合各种气候环境使用,它们的指示状态 不会因为震动或机械冲击而改变。
安装步骤
1 .指示器的安装分电缆头带电和不带电两种情况,一般情况下,应该把电缆头断电并接地后 再进行安装。
2 .用绝缘操作杆拔下肘型插头测试点的保护帽(测试点应无污损和锈蚀)。
3 .润滑指示器安装靴的内表面。
4 .用绝缘操作杆勾住指示器的操作孔把指示器套到肘型插头的测试点上,并旋转它到适当位置。 敬告:测试点或指示器的脏污、潮湿或其它故障有可能引起带电指示器误指示线路无电。在
操作相关设备之前,务必用国标认可的其它试验方法验证线路是否有电。